Homes for Heroes

 

 

Michael Shilale Architects, LLP designing Homes for Returning Veterans

April 22, 2011

Back to Press Releases and Publications

 

New City  NY -  Many veterans return from service with both physical and mental challenges. Since our veterans have given so much to our nation, it is not only our duty but also our responsibility to provide for those who have sacrificed so much for us. The Homes for Heroes project was envisioned to give veterans, who have multiple special needs, homes like everyone else.

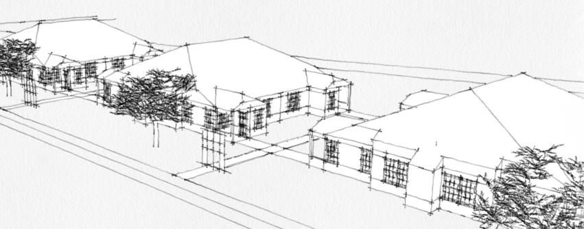
An inspired design will permit a level of privacy and connection to the community not easily accomplished. Each building will have four independent apartments, while each apartment will have a private entrance.  The porches will all front on a mews to encourage interaction between residents and help build a sense of community. The units will also have a connection to Western Highway, not directly fronting on this residential road, but not turning away either. Becoming part of the community again is sometimes a long and difficult road. This design will make that transition easier.

Our Homes of our Heroes will be fully accessible. Veterans who may have physical and/or mental disabilities need a barrier free dwelling. Support services will add an important component to secure a successful housing development.

For twenty years, clients have entrusted Michael Shilale Architects, LLP (MSA) to solve their building problems, protect their assets and investments, build under budget and realize their vision. Providing integrated solutions for new construction, renovation, and energy savings, since 1991 MSA has completed over 2,000 projects, each personally managed by principals Michael Shilale AIA, LEED or John Cirilli AIA, LEED.

MSA, an eight person architectural engineering firm is committed to protecting and preserving the environment through their design work.

MSA serves an educational, commercial, institutional, municipal and residential client base, throughout New York and New Jersey. For more information, please call 845-708-9200, or visit their website at www.shilale.com.

 



 
 
 
 

 

 
 
 
 

 

 
  © 2011 MICHAEL SHILALE ARCHITECTS. ALL RIGHTS RESERVED